| штат: | |
|---|---|
Описание продукта
Starsplas производит автоматические смесительные системы, разработанные специально для цехов по смешиванию пластиков ПВХ или ДПК. Эта закрытая система используется для автоматического дозирования, подачи, смешивания и подачи различных экструзионных порошков, частиц и жидкостей. Это экономит трудозатраты и предотвращает прямой контакт сотрудников с порошком.
1. Автоматическая система подачи – без присмотра.
Решения SPC для автоматического смешивания ПВХ разработаны специально для цехов по смешиванию пластиков ПВХ или ДПК. Эта закрытая система используется для автоматического дозирования, подачи, смешивания и подачи различных порошков, частиц и жидкостей. Это приводит к экономии труда и предотвращает прямой контакт с порошком.
2. Центральная система сбора пыли – без пыли
ПВХ, ДПК, пластиковая промышленность, смешивающая пыль, больше пыли, мобильность рабочих. При использовании центральной системы подачи мы решили соединить пылесборник с отверстием для сбора пыли, чтобы эту часть можно было собирать и перерабатывать. Мастерская без пыли является не только современным промышленным стандартом, но также позволяет сэкономить много материалов и труда.
3. Центральная система управления -- интеллектуальная.
Интеллектуальная система управления позволяет избежать ошибок и потерь, вызванных ручным управлением, таких как ошибка в формуле кормления, приводящая к неквалифицированным партиям отходов вторичной обработки. Отсутствие функции автоматической подачи может привести к недостаточному заполнению, что приведет к повреждению шнека и экструдера. Ключевым является отсутствие автоматизированной системы расчета материалов на базе производства.
| компонент | власть | ||||||
| Комбинация смесителя отопления/охлаждения | 245кВт | ||||||
| Автоматическая система дозирования и взвешивания PVC и CACO3 | 18,5 кВт | ||||||
| Автоматическая система взвешивания добавок | 7,8 кВт | ||||||
| Аддитивная система удаления пыли | 1,5 кВт | ||||||
Широко используется в химической, аккумуляторной промышленности, покрытиях, красителях, пестицидах, фармацевтических препаратах, продуктах питания, кормах, добавках, новых огнеупорах, электронике, пластмассах, керамике, удобрениях, металлургии, горнодобывающей промышленности, сухих строительных смесях, пенополистироле, специальных строительных материалах, таких как порошок, твердая порошкообразная жидкая смесь.

Вопросы и ответы
1. Как обслуживать миксер?
①.Должно выполняться в соответствии с процедурами эксплуатации оборудования, что является хорошим обслуживанием оборудования.
②.Обратите внимание на оборудование после нормального запуска, прежде чем добавлять смесь, добавление должно происходить в необходимом порядке медленно.
③.Подготовьте резиновое кольцо, резиновое кольцо, клиновой ремень и подшипник качения для уплотнительного кольца муфты.Рабочие части этих деталей склонны к выходу из строя.При необходимости их следует своевременно заменять, периодически (как правило, в первом квартале) проверять, не ослабли ли крепления, проверять плотность установки клинового ремня, а также чистить и чистить все детали оборудования.
Контактная информация
WhatsApp: +86 19962650268
ТЕЛ:+86 19962650268
Вичат: +86 19962650268
Почта: eve@starsplas.com
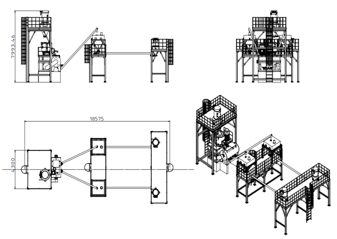
Чертеж дисплея продукта



